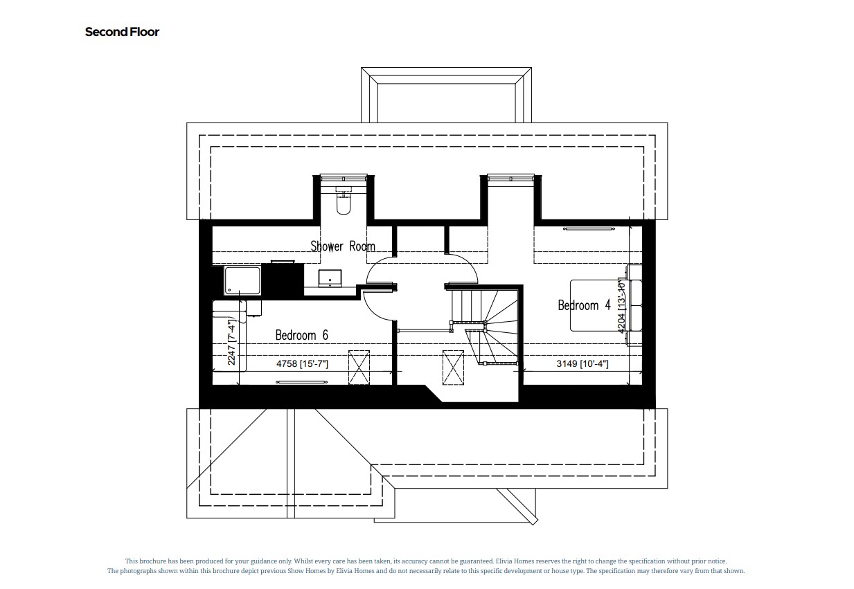
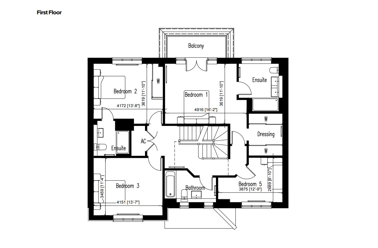
Kingsgate Beacon

Plot 7 The Beacon

Welcome to

Plot 7 The Beacon

A stunning 6 bedroom home finished to a high standard with far reaching views across the golf course to Joss Bay

6 Beds | 2 x En-Suite | Shower room | Cloakroom | Garage
Reading Street, Broadstairs, Kent, CT10 3AZ
To be Released
Book a viewing Request brochure
Kingsgate Place drone

The Beacon

The Elmwood Show Home Virtual Tour

Specification

KITCHEN FEATURES

  • The shaker style kitchen is equipped with a range of wall and floor cabinets with stone work surfaces, under mounted sink and full height splash backs below wall units.
  • Fully integrated appliances to include : • Siemens induction hob with extractor. • Siemens single electric oven. • Siemens electric oven with grill. • Samsung American fridge freezer with ice maker. • Siemens dishwasher. • Wine cooler. • Quooker hot tap
  • Utility room is provided with a range of base units, stone work surface, stainless steel sink and drainer with space for washing machine and condensing dryer.

BATHROOM, EN SUITES AND CLOAKROOM

  • Contemporary white suites with chrome fittings.
  • Cabinetry to cloakroom, bathroom and en suites.
  • Heated towel rail provided to the bathroom and en suites.
  • Shaver socket provided to the bathroom and en suites.
  • Mirror provided to the cloakroom, bathroom and en suites.
  • Ceramic wall tiles to bathroom, en suites and cloakroom.

ELECTRICAL AND MULTIMEDIA

  • Brushed chrome switch plates and sockets throughout
  • Double socket with USB inserts to be included in kitchen area, to the bed position in bedroom 1 and one in the study, drawing room, dining room and remaining bedrooms
  • Recessed down lights or pendant lighting to all rooms
  • TV and BT points are provided to selected rooms with a provision for Sky Q (box, dish and subscription not included)
  • CAT6 cabling from master BT point (under stairs cupboard) to TV position in the drawing room, study, dining room and bedroom 1 to allow for hard wired internet access to these locations only. Other locations to rely on wireless internet access (Subs
  • EV car charging station provided.
  • Power provided to loft area.

CENTRAL HEATING AND HOT WATER

  • Underfloor heating to ground floor via air source heat pump with thermostat control.
  • Radiators to first floor with wireless thermostat.
  • Hot water controlled via hot water cylinder.

PEACE OF MIND

  • A wireless alarm system is provided to the house PIRs to ground floor, landing and master bedroom.
  • Double glazed PVCu windows and doors with multi point locking system.
  • External lighting provided to all external doors.
  • A mains fed smoke alarm is fitted to the hall and landing with a battery backup

FINISHING TOUCHES

  • American White Oak 5 vertical panel internal doors with chrome fittings with full glazed doors to the kitchen/breakfast/dining room and drawing room.
  • French doors provided to the rear of the family room.
  • Aluminium bi-fold doors provided to the dining area.
  • Fireplace with wood burning stove provided to the drawing room.
  • American White Oak staircase and handrail with softwood treads
  • French doors leading to balcony in bedroom 1 of plots 1, 3–7 & 18. Juliette balcony to plots 2 & 8.
  • Sliding doors to wardrobe(s) with shelf and hanging space in bedroom 1.
  • Wardrobe in bedroom 2
  • All internal joinery will consist of attractive skirtings and architraves finished in a white gloss.
  • Amtico fitted to various ground floor areas, bathrooms and en suites, please ask for details.

EXTERNAL FEATURES

  • Landscaped front garden with feature planting
  • Turf to rear garden with an area of patio.
  • Double external waterproof socket to the rear of the property.
  • External tap provided.
  • Double garage to have electronically operated ‘up and over’ doors with remote control, power and light. (Plots 6 & 7 have an enlarged single garage. Plots 11 & 12 have a single garage).

AFTERCARE

  • Elivia Homes has a dedicated Customer Aftercare Department providing peace of mind for two years after you move into the property.

SERVICES

  • Mains electricity and drainage.
  • BT high speed fibre to the property. Final speed may vary depending on your local network and provider (subject to connection and subscription).

GUARANTEES

  • All the homes come with a ten-year Q Assured Warranty.

TENURE

  • Freehold.
  • Kingsgate Place benefits from a Residents Management Company with an annual service charge.

Site Plan

Site Plan

Book a Viewing