Montague plot 1

Montague Plot 1

Welcome to

Montague Plot 1

Stamp Duty contribution available!

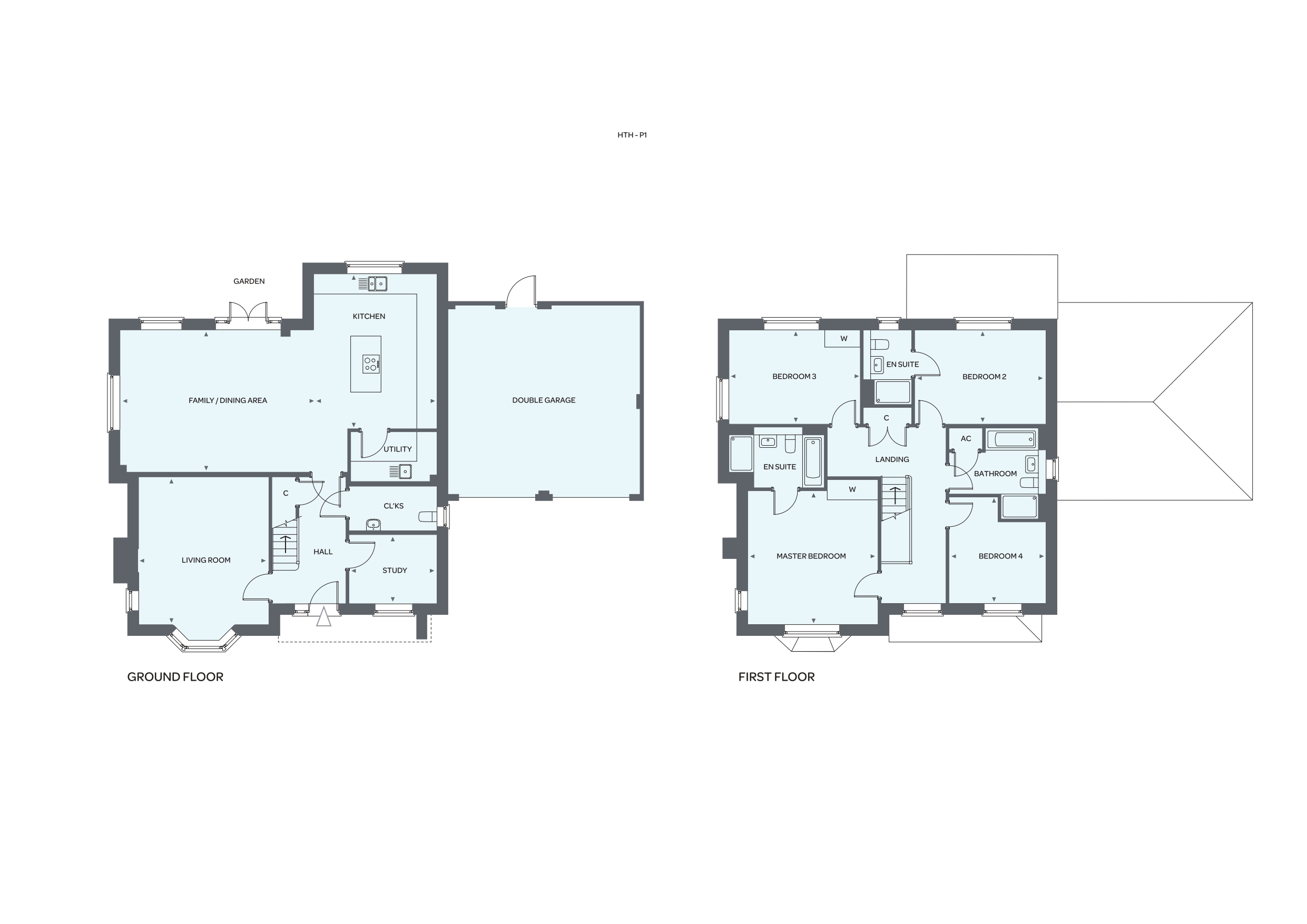
Four bedroom, detached home with double garage.

Includes:

  • Window treatments
  • Lights
  • Wood burning stove in lounge
  • Pictures
  • Mirrors
  • Landscaped Garden
  • Double Garage – includes spot lights
  • EV charging point
4 Beds | Bath | 2 En Suites | Double Garage
Didcot Road, Long Wittenham, Oxfordshire, OX14 4RG
Sold
Request brochure
Montague plot 1

Request brochure

Specifications

Kitchen

  • Shaker style kitchens incorporating Quartz worktops and splash backs
  • Electric, double, stainless steel, Zanussi oven with 4-burner gas hob and extractor cooker hood
  • Integrated Zanussi fridge/freezer
  • Integrated Zanussi dishwasher
  • Stainless steel 1 1/2 bowl sink with chrome mixer tap

Utility Room

  • Plumbing, wiring and space for washing and drying machines
  • Stainless steel bowl sink with lever tap
  • Laminate worktops and up stands

Bathroom & En Suites

  • Modern styled bathrooms and en suites with chrome fixings and Roca sanitary ware
  • Semi pedestal basins with chrome mixer taps
  • Close coupled toilets with soft-close seats
  • Chrome shower head with slide rail
  • Clear glass sliding door shower screen and glass bath shower screen
  • Heated chrome towel rails (size dependent on layout)
  • Ceramic wall tiles on selected areas, edges trimmed with flat chrome
  • Shaver socket
  • Karndean flooring

Media & Connectivity

  • Living rooms wired ready for Sky Q
  • TV points in all bedrooms and studies
  • Telephone points in living room, hallway and master bedroom
  • USB charger points incorporated in kitchen socket

Heating, Lighting & Electrical

  • Energy efficient gas-fired heating with mains pressure hot water system and central programmer
  • Radiators
  • LED down lights in kitchen, utility, all bathrooms, en suites and cloakrooms
  • Pendant lighting in all other rooms
  • External lights for all external doors
  • External, weatherproof power socket
  • Facility for future wireless alarm system
  • Carbon monoxide detector
  • Mains fed smoke detector alarm with battery back up
  • Mains fed heat detector alarm

Finishing Details

  • Painted five-panel internal doors with chrome finish door furniture
  • Closed-tread, white-painted, staircase with hard-wood hand rail
  • Painted, three stepped architrave and skirting boards
  • Full height wardrobe with sliding frosted glass door or shelf/rail in the dressing room area
  • Landscaped front
  • Turf in the back garden
  • Close board fencing around gardens
  • External water tap
  • Communal children’s play area

Garages

  • Double power sockets and strip lighting

Site Plan

EF site plans

Book a Viewing

Contact our Sales Team to register your interest in this development via the form here, or on 07494 179728.

Experience the luxury and prestige of an Elivia home for yourself. Book now and one of our team will show you the home’s individual charms and high spec finish. Get in touch to book your appointment. Ahead of your visit, please take the time to download a pdf brochure for our development with summary information of the plots.